Joseph54
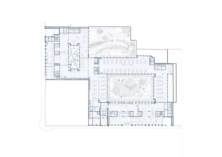
Joseph 54, an office building in the heart of the European Quarter, is due for a technical renovation that also aims to strengthen its public relationship with the surrounding neighbourhood. The renovation methodology prioritises preserving as much of the existing structure as possible. Targeted openings create greater transparency and improve both the internal connections within the building complex and its interaction with the urban environment.
On Rue Joseph II, this results in a double-height lobby overlooking the inner courtyard, street-facing terraces, and space for a public function. The semi-circular top floors are replaced by a lightweight timber extension with terraces. On Rue de Deux Églises, the historic façade is restored and reactivated through an atrium with walkways and natural light.
The circular approach is also expressed in the new architectural language: timber-frame construction with curtain walls, straw insulation finished with lime plaster, the reuse of existing materials for window sills and terrace surfaces. Renewable technologies and natural materials applied at this scale position the project as a pioneer of innovative office building renovation.
- Location
- BrusselsBelgium
- Surface
- 17.900m²
- Client
- Whitewood
- Concept
- 2025
- Architecture
- BC architects & studies i.c.w. Jaspers-Eyers Architects
- Structure
- Lemaire Ingénieurs
- Technic
- CES
- Sustainability
- SuReal
- Patrimoine
- Louise Kiekens and Laura Le Noir