Stadion de Taeye
New stadium for the De Taeye sports ground in Heist
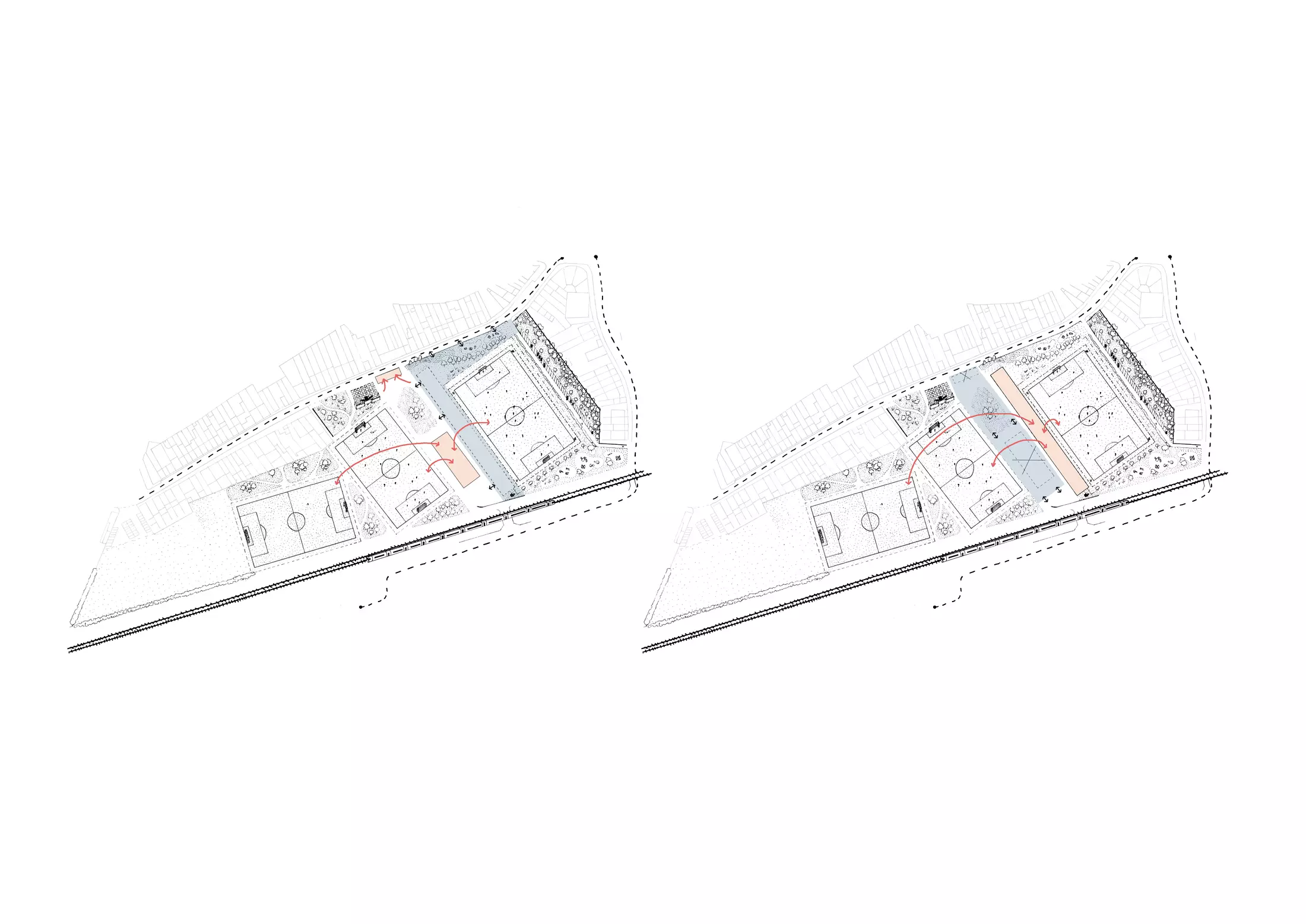
The redevelopment of the Heist sports site transforms the existing fragmented facilities into a unified, climate-resilient sport park by integrating Stadion De Taeye, Sportcentrum Laguna, and tennis club Duinbergen into one cohesive community hub. The project is centered around a new central stadium building that serves as an inviting heart for athletes and local residents alike. By placing all functions on the ground floor under a continuous roof, the design ensures maximum accessibility and allows the building's own plinth to function as stands along the main field.
The architectural concept utilizes a modular, prefabricated "building kit" system that allows for a fast, cost-efficient, and flexible construction process. This repetitive system is specifically designed to be placed on-site without the need for foundation excavation works, minimizing environmental impact. Because the building is composed entirely of prefab elements, the sports site can remain fully operational during construction, with the existing canteen and grandstands only being demolished once the new structure is complete.
Strategically positioned between the old facilities and the primary field, the new stadium acts as a catalyst for the broader transformation of the site. The clubhouse is situated at ground level to be both literally and figuratively accessible, serving a broad social function beyond sport alone. This sustainable investment facilitates a high-quality environment for youth and sports operations while establishing a vital public connection to the surrounding cycling axes and neighbouring sports centers.
- Location
- Knokke-HeistBelgium
- Budget
- 3.610.000€
- Client
- Gemeente Knokke-Heist
- Concept
- 2025
- Architecture
- BC architects & studies
- Structure
- Servais Engineering Architectural
- Technic
- Flow Transfer International